Search

Leave a Message

Thank you for your message. We will be in touch with you shortly.

Explore Our Properties

Property Description

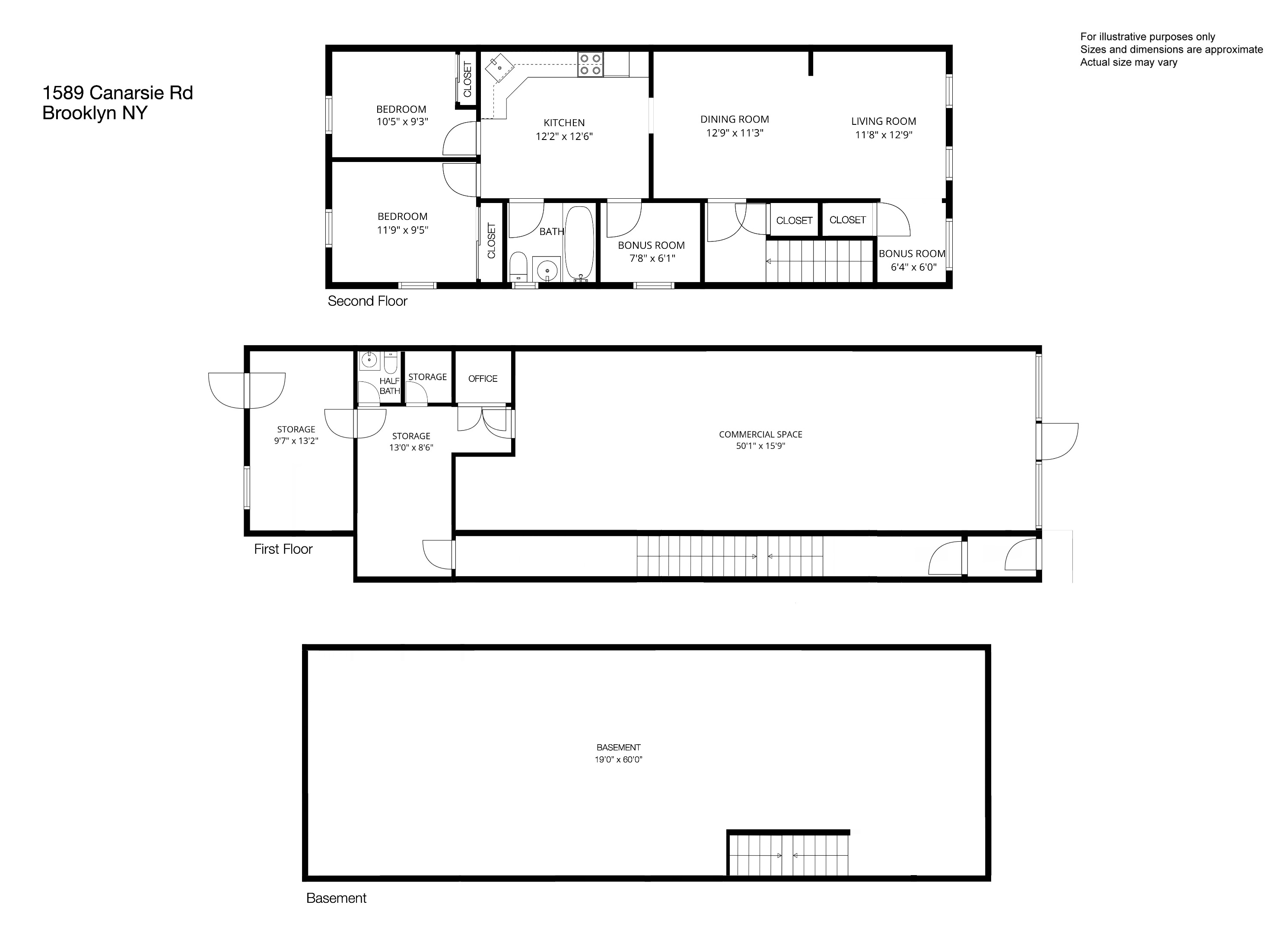
Exceptional opportunity to acquire a 2,000 square foot mixed-use building in the Canarsie section of Brooklyn. This income-producing property features a fully operational laundromat on the ground floor and a two-bedroom residential apartment above, offering a strong combination of commercial and residential revenue.
The commercial space is currently operating as a neighborhood laundromat equipped with approximately 18 washers and 20 dryers, serving the surrounding residential community and benefiting from consistent daily demand. The second-floor two-bedroom apartment provides additional rental income, making the property well-suited for investors seeking a stable mixed-use asset or for an owner-operator looking to run their own business while collecting residential rent.
The property also includes accessible on-site parking, a valuable amenity for both customers and residents. Positioned on Canarsie Road, a well-traveled corridor, the building benefits from strong neighborhood density and visibility.
This is a rare opportunity to own a turnkey mixed-use property in a growing Brooklyn neighborhood with strong income potential.
Property Features:
Mixed-use building (commercial + residential)
Approximately 2,000 sq ft building size
Ground-floor laundromat with 18 washers and 20 dryers
Second-floor two-bedroom residential unit
Accessible on-site parking
High visibility location in Canarsie
Strong investment and income potential

Overview

Property Status
Pending
MLS ID
RLS20078055
Property Type
Residential
Year Built
1901

Features & Amenities

Total Area
2,000 Sq.Ft.
Stories
2
Laundry Room
See Remarks
Other Exterior Features
Private Outdoor Space Under 60 Sqft
Sales Price
$850,000
Real Estate Tax
$5,160/yr

Downloads

1589 Canarsie Road

Schedule a Tour

We would love to help you see this beautiful home! As a full-service brokerage, we can help you tour. Please submit an offer, and answer questions about the buying process.

Thank you

for your interest in 1589 Canarsie Road, Brooklyn, NY 11236

1589 Canarsie Road
Navigate

Mortgage Calculator

Estimate your monthly mortgage payment, including the principal and interest, property taxes, and HOA. Adjust the values to generate a more accurate rate.
$0,000 Your Payment 20 15 65
$0,000 Your Payment

I'm Interested In

1589 Canarsie Road

or
  • CallClaudette Rolling

    License #10301221621

    (908) 659-8285
  • Active Listings

    Featured Properties

    • 660 Bergen Street 3D Pending

      $1,175,000

      660 Bergen Street 3D, Brooklyn, NY 11238

      • 1 Bed
      • 2 Baths
      • 830 Sq.Ft.
    • 1589 Canarsie Road Pending

      $850,000

      1589 Canarsie Road, Brooklyn, NY 11236

      Listing Courtesy Claudette Rolling with Compass

      • 2 Beds
      • 2 Baths
      • 2,000 Sq.Ft.
    • 1497 Prospect Place 2 Pending

      $599,999

      1497 Prospect Place 2, Brooklyn, NY 11213

      Listing Courtesy Claudette Rolling with Compass

      • 3 Beds
      • 1 Bath
      • 931 Sq.Ft.
    • 566 Louisiana Avenue 3 For Sale

      $479,999

      566 Louisiana Avenue 3, Brooklyn, NY 11239

      Listing Courtesy Claudette Rolling with Compass

      • 3 Beds
      • 2 Baths
      • 1,433 Sq.Ft.
    • 179 Ocean Parkway 4H For Sale

      $399,999

      179 Ocean Parkway 4H, Brooklyn, NY 11218

      Listing Courtesy Claudette Rolling with Compass

      • 1 Bed
      • 1 Bath
      • 705 Sq.Ft.
    • 385 Argyle Road 4A For Sale

      $349,000

      385 Argyle Road 4A, Brooklyn, NY 11218

      Listing Courtesy Caterina V Smith with Compass

      • 1 Bath
      • 650 Sq.Ft.
    • 3220 Ave H 6N For Sale

      $329,999

      3220 Ave H 6N, Brooklyn, NY 11210

      Listing Courtesy Claudette Rolling with Compass

      • 1 Bed
      • 1 Bath
      • 925 Sq.Ft.
    View All

    Follow Claudette On Instagram